本次為300平方辦公室裝修效果圖,設計師在辦公室設計中,以簡潔、移動為辦公室設計關鍵詞,目的就是希望營造一個實用、千變萬化的辦公空間。
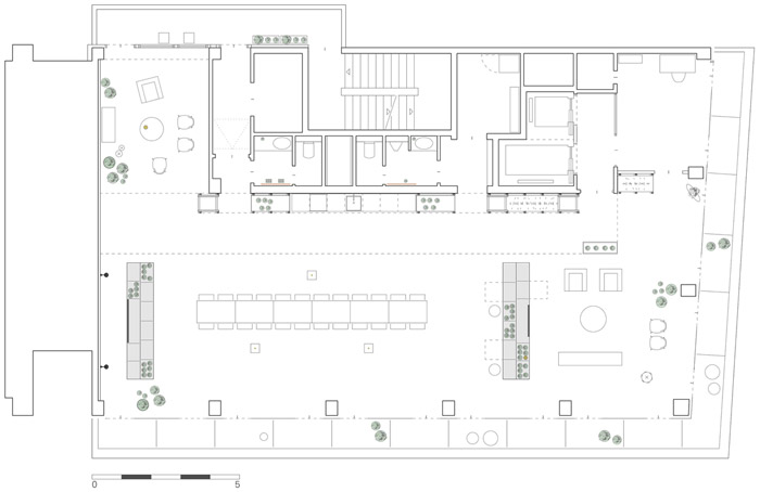
▼300平方辦公室平面圖

▼300平方辦公室接待區

▼300平方辦公室過道

▼300平方辦公室綠植柜

▼300平方辦公室綠植柜

▼300平方辦公室辦公區

▼300平方辦公室交流區

▼辦公室移動柜

▼辦公室移動柜

▼辦公室移動柜

▼辦公室綠植柜

本次300平方辦公室裝修效果圖講解到此結束,設計師在辦公室設計中,以簡潔、移動為辦公室設計關鍵詞,目的就是希望營造一個實用、千變萬化的辦公空間。