本次為廠房辦公室設計裝修效果圖,辦公室設計面積1000平方,設計師為了打破空間單調的格局,拆除了原有中間部位樓板,將其上下貫通形成高大空間,在這里設計師將各色加建和自然融入其中,使之完全變身為整體環(huán)境的視覺焦點和活動中心。
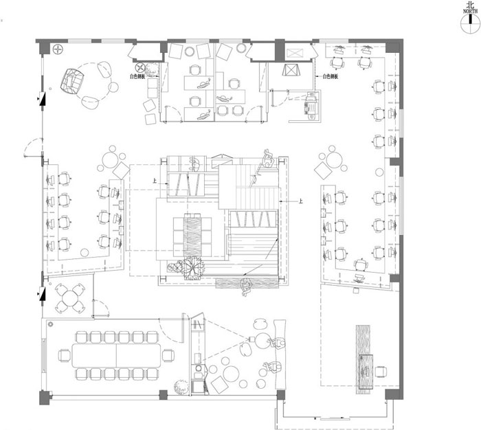
▼1層平面圖

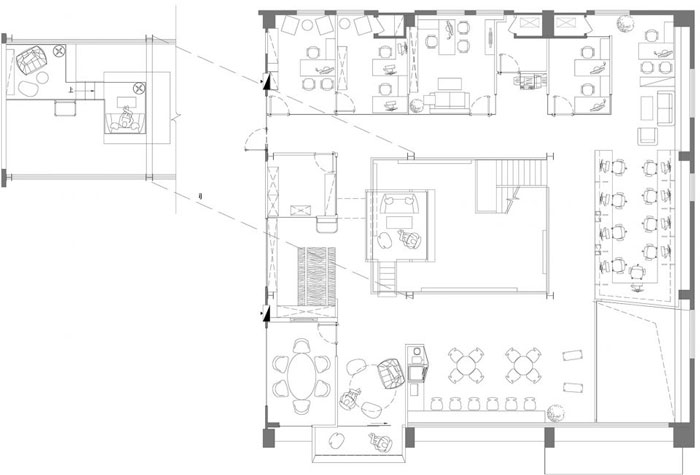
▼2層平面圖

▼前廳

▼前廳

▼前廳

▼空間概覽

▼入口外觀

▼中庭

▼植物和水景構成一幅和諧的天然圖畫



▼簡潔而通透的樓梯

▼鋼結構搭建的“樹屋”空間懸掛在中庭上方

▼VR體驗區(qū)



▼會議室

▼咖啡休息區(qū)

▼休閑區(qū)

▼材料室

▼位于樹屋頂部的瞭望塔

▼穿孔鋁板圍欄


▼辦公區(qū)

本次廠房辦公室設計裝修效果圖講解到此結束,設計師為了打破空間單調的格局,拆除了原有中間部位樓板,將其上下貫通形成高大空間。
裝修風格 | 裝修攻略 | 深化設計 | 關于嵐禾 | 免責聲明 | 嵐禾保障 | 工裝網(wǎng) | 中式辦公室裝修 | 廠房辦公室裝修 | 辦公室裝修效果圖 | 金融辦公室裝修 | 教育培訓機構裝修 | 科技辦公室裝修 | 公司辦公室裝修 | 辦公室裝修設計 | 民宿設計 | 聯(lián)系嵐禾
地址:杭州市西湖區(qū) 中國美術學院風景建筑設計研究總院(西斗門路) 20號 5B 郵編:310000 業(yè)務咨詢:0571-88091570 傳真:0571-88091570 E-mail: 1467724601@qq.com
杭州工裝裝修公司:www.dayingpimao.com.cn