本次為集團總部辦公樓裝修設計方案,辦公樓設計面積12000平方,設計師在辦公樓設計中,以科技與人文的結合為辦公室設計理念,目的就是打造人文一體的辦公樓,以此彰顯集團的形象。
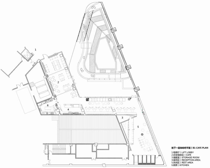
▼集團總部辦公樓負一平面圖

▼集團總部辦公樓負一平面圖

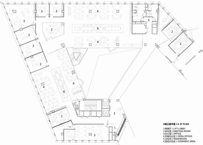
▼集團總部辦公樓三層平面圖

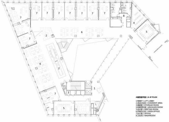
▼集團總部辦公樓四層平面圖

▼集團總部辦公樓五層平面圖

▼集團總部辦公樓大廳

▼集團總部辦公樓前臺

▼集團總部辦公樓電梯間

▼集團總部辦公樓樓梯

▼集團總部辦公樓樓梯

▼集團總部辦公樓入口

▼集團總部辦公樓過道

▼集團總部辦公樓走廊

▼集團總部辦公樓接待區(qū)

▼集團總部辦公樓辦公區(qū)

▼集團總部辦公樓辦公區(qū)

▼集團總部辦公樓吧臺

▼集團總部辦公樓辦公區(qū)

▼集團總部辦公樓會議區(qū)

▼集團總部辦公樓休息區(qū)

▼集團總部辦公樓茶水間

▼集團總部辦公樓休息區(qū)

▼集團總部辦公樓餐廳

本次集團總部辦公樓裝修設計方案講解到此結束,設計師在辦公樓設計中,以科技與人文的結合為辦公室設計理念,目的就是打造人文一體的辦公樓,以此彰顯集團的形象。
裝修風格 | 裝修攻略 | 深化設計 | 關于嵐禾 | 免責聲明 | 嵐禾保障 | 工裝網(wǎng) | 中式辦公室裝修 | 廠房辦公室裝修 | 辦公室裝修效果圖 | 金融辦公室裝修 | 教育培訓機構裝修 | 科技辦公室裝修 | 公司辦公室裝修 | 辦公室裝修設計 | 民宿設計 | 聯(lián)系嵐禾
地址:杭州市西湖區(qū) 中國美術學院風景建筑設計研究總院(西斗門路) 20號 5B 郵編:310000 業(yè)務咨詢:0571-88091570 傳真:0571-88091570 E-mail: 1467724601@qq.com
杭州工裝裝修公司:www.dayingpimao.com.cn