建筑層高相信有人聽過,那么結構層高相信很多人都不知道了,下面嵐禾設計為大家介紹,建筑層高與結構層高有什么區別:
問
如何區分建筑層高和結構層高?
答

1:建筑標高,是樓地面裝修后的標高;
2:結構標高,是樓地面裝修前的標高;
3:建筑層高=上一層建筑標高-當前層建筑標高;
4:結構層高=上一層結構標高-當前層結構標高;
5:屋面層沒有建筑標高;
6:注意頂層建筑層高與結構層高并不一致;
7:無地下室時,首層建筑與結構層高并不一致;
8:女兒標高一般指的是結構標高;
9:如果不出現地下室,基礎層沒有建筑標高。
問
軟件里建筑層高是建筑層高?還是結構層高?
答

結構層高,1:與施工一致;2:與鋼筋軟件一致。
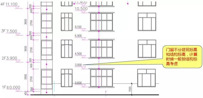
問
門窗分建筑標高和機構標高嗎?
答

門窗不分建筑標高和結構標高,計算時候一般按結構標高考慮。
溫馨提示
在文章的最后為大家總結,1:建筑標高,是樓地面裝修后的標高;2:結構標高,是樓地面裝修前的標高;